ユーミー波島(1LDK 1階部分)
お問い合わせ番号:3130-106
情報更新日:2026/01/29 掲載期限:2026/02/12
情報更新日:2026/01/29 掲載期限:2026/02/12
| 賃料 | 5.2万円 |
|---|---|
| 共益費 | - |
| 敷金 / 保証金 | 7.8万円 / - |
| 礼金 | 0ヶ月 |
| 敷引 / 償却金 | - / - |
| 仲介手数料 | 57,200円 |
| 所在地 | 宮崎県宮崎市波島2丁目20番2号 |
| 交通 | ・JR日豊本線宮崎神宮駅まで徒歩24分 ・JR日豊本線蓮ケ池駅まで徒歩36分 |
POINT
落ち着いた住環境が魅力の「ユーミー波島」。 閑静な住宅街に位置し、周辺は交通量も少なく、ゆったりとした毎日をお過ごしいただけます。室内は使い勝手の良い間取りで、日当たり・風通しも良好。独立洗面台や収納
詳しい事は、日中商事 宮崎店(0985-77-8110)までご連絡ください。
落ち着いた住環境が魅力の「ユーミー波島」。 閑静な住宅街に位置し、周辺は交通量も少なく、ゆったりとした毎日をお過ごしいただけます。室内は使い勝手の良い間取りで、日当たり・風通しも良好。独立洗面台や収納
詳しい事は、日中商事 宮崎店(0985-77-8110)までご連絡ください。
ユーミー波島(1LDK 1階部分)
賃料
5.2万円
共益費
-
敷金 / 保証金
7.8万円 / -
礼金
0ヶ月
敷引 / 償却金
- / -
仲介手数料
57,200円
所在地
宮崎県宮崎市波島2丁目20番2号
交通
・JR日豊本線宮崎神宮駅まで徒歩24分
・JR日豊本線蓮ケ池駅まで徒歩36分
情報更新日:2026/01/29 掲載期限:2026/02/12
周辺情報の表示
周辺情報の表示
目的地までの経路・距離
地図で目的地をクリックすると、その地点までの経路が表示されます。
経路の距離と時間:
物件詳細情報
物件詳細情報
| 建物構造 | 鉄筋コンクリート造 | 所在階 / 建物階数 | 1階部分 / 地上4階建て |
|---|---|---|---|
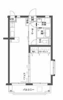
| 築年月 | 2011年03月 | 間取り | 1LDK (内訳:LDK11.3 洋6.4) |
| 専有面積 | 42.64㎡ (12.89坪) | バルコニー面積 | - |
| 向き | 南向き | 総戸数 | - |
| 駐車場 / 駐車台数 | 有り(有料) / 1台 | 駐車場空き台数 | 1台 |
| 駐車料 | 3,300円(税込) | 駐車場備考 | 敷地内駐車場 |
| 駐輪台数 | - | 保険料 / 保険契約年数 | 18,000円 / 2年 |
| 更新料 | - | 保証内容 | 加入要(賃貸保証会社:ジェイリース株式会社、総賃料の80%(初回のみ)毎月800円) |
| その他一時金 | - | その他費用 | - |
| 定期借地借家 | 無し | 現況 | 空 |
| 入居可能時期 | 2026年 02月 (中旬) | 取引態様 | 一般媒介 |
| 特記事項 | - | ||
| 備考 | - | ||
周辺施設情報
| 学校 | - |
|---|---|
| コンビニ・スーパー | - |
| その他 | - |
条件・設備
| 条件 | 2人入居:可、単身者:希望 |
|---|---|
| 設備 | 水道:公営、ガス:プロパン、排水:下水、バス:専用、トイレ:専用、バス・トイレ別、シャワー、コンロ:ガス、コンロの口数:2口、給湯、追い焚き、冷暖房:エアコン、洗濯機置場:室内、BSアンテナ、オートロック、フローリング、駐輪場あり、インターネット:対応、温水洗浄便座、独立洗面、シューズボックス:有り、オンライン相談:可、IT重説対応物件:有り |
取扱い店舗情報
株式会社日中商事 宮崎店
| 連絡先 | 0985-77-8110 |
|---|---|
| 所在地 | 宮崎県宮崎市橘通東4丁目5番25号 M-city橘1階 |
| 営業時間 | 10:00~19:00 |
| 定休日 | - |
| 免許番号 | 宮崎県知事(14)第1495号 |
| 所属公正取引協議会 | - |
| 加盟団体名 | - |
お電話でお問い合わせの際は「くらさぽを見ました」とお伝え下さい。
0985-77-8110
株式会社クロスワン
| 連絡先 | 0985-28-2333 |
|---|---|
| 所在地 | 宮崎県宮崎市千草町2-14 1階 |
| 営業時間 | 11:00~18:00 |
| 定休日 | 日曜日(予約に応じて対応) |
| 免許番号 | 宮崎県知事(1)5052号 |
| 所属公正取引協議会 | - |
| 加盟団体名 | 全日不動産協会 |
お電話でお問い合わせの際は「くらさぽを見ました」とお伝え下さい。
0985-28-2333
物件に関するお問い合わせ
個人情報の取り扱いについて
- ▼ 掲載中の物件について
- 「くらさぽ」は、皆様の住まい探しパートナーとして、不動産物件情報の精度向上に努めてまいります。
掲載中の物件につきまして、「事実と異なる表記」や「成約済みの物件の掲載」など、お気づきになりましたら、以下のページよりご連絡ください。 - ・くらさぽ110番 掲載情報に関するお問い合わせ
- ▼ 掲載中の物件について
- 「くらさぽ」は、皆様の住まい探しパートナーとして、不動産物件情報の精度向上に努めてまいります。
掲載中の物件につきまして、「事実と異なる表記」や「成約済みの物件の掲載」など、お気づきになりましたら、以下のページよりご連絡ください。 - ・くらさぽ110番 掲載情報に関するお問い合わせ